|
LAENNEC RIVE GAUCHE, PARIS 7 Transformation des bâtiments historiques de l’ancien Hôpital Laennec en bureaux pour les sièges de Kering et Balenciaga
> Maître d’ouvrageALLIANZ Real Estate FranceTravaux preneur: Groupe KERING> Maître d’ouvrage déléguéAltarea Cogedim> ArchitectesFrédéric Druot ArchitectureAssocié co-traitant ACMH: Benjamin Mouton> Coordination travaux MOEBatscop, Laurent Josse> Etudes techniquesCoteba, Groupe Artelia> PaysageClaude Figureau, Sophie Richard> Surface Plancher17 600 m²> Coût des travaux116 M€ HT> Mission MOE architecture + Agencement + Space planning> CalendrierLivraison 2016, Travaux en cours> SpécificitéTravaux en site classéObtention des labels HQE et Breeam |
|
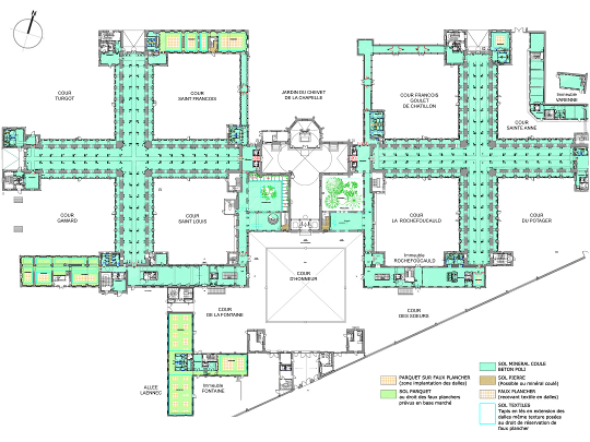
Plan général du projet, Niveau 0 |
|
Le projet concerne la transformation des bâtiments historiques de l’ancien Hôpital Laennec dans le 7ème arr. de Paris en immeuble de bureaux. Le site se compose essentiellement de deux grands ensembles de bâtiments en croix sur 3 niveaux articulés de part et d’autre d’une chapelle aujourd’hui désacralisée.
Les 17 600m² de surfaces sont destinées à accueillir le futur siège de KERING et l’ensemble des bureaux, showrooms, ateliers et bureaux de Balenciaga. Le projet se compose d’espaces de bureaux, d’espaces de réceptions, de pôles de réunions, d’espaces de convivialité, de jardins, d’un parc de stationnement et de livraisons, de services annexes.
Le projet de KERING s’inscrit dans le cadre des travaux engagés par le propriétaire Allianz.
KERING souhaite que l’identité des lieux soit en accord et en correspondance avec l’esprit du groupe, révélateur d’un véritable esprit de maison : soit un ensemble identifiable et étonnant (non ordinaire). Véritable outil de représentation, de travail et de production cohérent, serein, généreux, ouvert et élégant, en adéquation avec les lieux existants. |
|
>> Book Français (PDF) |

|
Crédit © FREDERIC DRUOT ARCHITECTURE |









|
>> Book English (PDF) |




















