|
Plan |
|
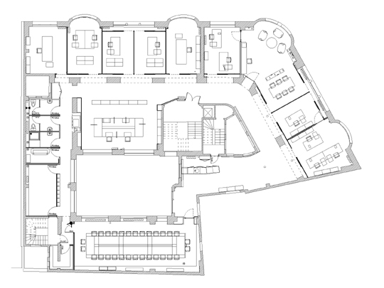
Le projet organise les services des directions de l’administration et de la conservation de l’agence France-Museums sur deux plateaux de bureaux d’un immeuble début XXème rue Bachaumont à Paris 2ème. L’agence est en charge du projet de musée du Louvre à Abu Dhabi. Chaque plateau s’organise autour d’une grande cour centrale. L’ensemble des programmes répartis sur les 1000m² de plateaux bénéficie d’une double lumière naturelle. Une unique et large circulation, distribue alternativement des espaces ouverts et/ou fermés de bureaux, des espaces de convivialité et de service, des salles destinées aux grandes réunions plénières. Deux esprits de lumière et de travail : L’ensemble du niveau de la direction générale est blanc, murs/sols/plafonds, pigmenté par les pointes colorées des mobiliers et des œuvres prêtées par le FNAC. Le niveau de la direction de la conservation, plus dense, se différencie par un parquet et des épaisses parois/bibliothèques implantées perpendiculairement à la lumière naturelle. |









|
AGENCE FRANCE-MUSEUMS > Maître d’ouvrageAgence France-Museums > ArchitectesFrédéric Druot Architecture > Etudes FluidesSLETEC > Etudes StructureFDI > EconomieFDE > MobiliersSilvera, & Vitra France > Surface SHON1 000 m² > Coût des travaux et mobiliers1.2 M euros HT > LivraisonJuillet 2008 > Délais études et travauxJanvier à juillet 2008
|
|
Crédits © FREDERIC DRUOT ARCHITECTURE |